Vznik Transformačního centra je jedinečnou příležitostí, jak dát okolní lokalitě nový a výrazný impulz.
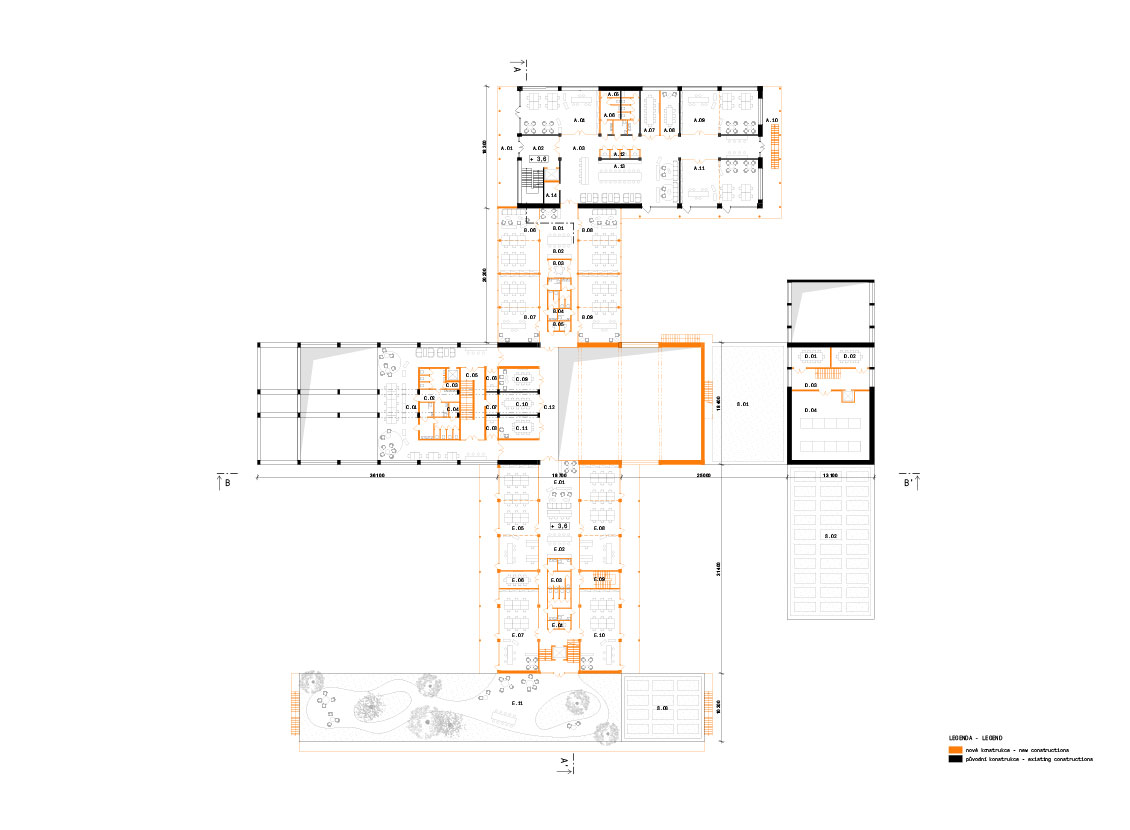
K adaptaci přistupujeme s důrazem na hledání a využití kvalit a charakteru původní školy, které spatřujeme především ve skeletové konstrukci jednotlivých objektů, pavilonovém charakteru celého areálu, důrazu na utilitárnost a funkčnost budov a v neposlední řadě také ve vzrostlé zeleni, která komplex prostupuje.
V návrhu definujeme těžiště areálu, které bude maximálně průchozí, komunikující a otevřené do veřejného prostoru.
Hlavní předprostor nekončí hranou domu, ale prochází skrze objekty a část areálu až do nově navrhovaného veřejného parku. Snažíme se do místa přinést maximálně otevřenou, komunikující a civilní architekturu jakožto obraz soudobé, respektive budoucí veřejné instituce.
2. místo ve veřejné architektonické soutěži
místo / Ústí nad Labem
rok / 2023
velikost / 4 600 m2
fáze / soutěžní návrh
architekt / Tomáš Hanus, Jan Holub
spolupráce / Jana Watersová