Stodola v Pošumaví
Stodola v Pošumaví

Objekt bývalé kovárny stojí v údolí řeky Blanice, na téměř nedotčeném místě v Pošumaví.
Jediné sousedství tvoří ruina bývalého mlýna, areál pily a ticho okolních pastvin.
Chalupu jsme převzali těsně předtím, než vinou necitlivých zásahů zcela přišla o svou původní
autenticitu.

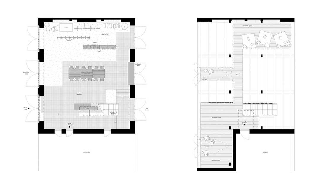
Projekt nazýváme rekonstrukcí rekonstrukce.
Naším úkolem bylo zrevidovat největší omyly - dům spojit, vyčistit, trochu zamést a doplnit potřebné.

Velkorysá stodola, která na dům navazuje, naštěstí zasažena nebyla.
Prostor velikého měřítka jsme se pokusili co možná nejvíce otevřít, prosvětlit a doplnit co
nejsubtilnějšími zásahy. Celý projekt také vznikl s maximálním ohledem na místní zdroje,
zadáním a cílem bylo použít pouze materiál, který byl na chalupě k dispozici.
Rekonstrukce se prakticky celá odehrála svépomocí, náklady nepřesáhly 500 tisíc CZK.

místo / Blanický Mlýn

rok / 2018

velikost / 276m2

fáze / realizace

architekt / Tomáš Hanus, Jan Holub

fotografie / Ondřej Bouška