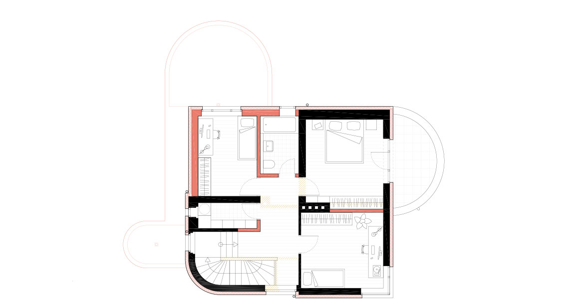
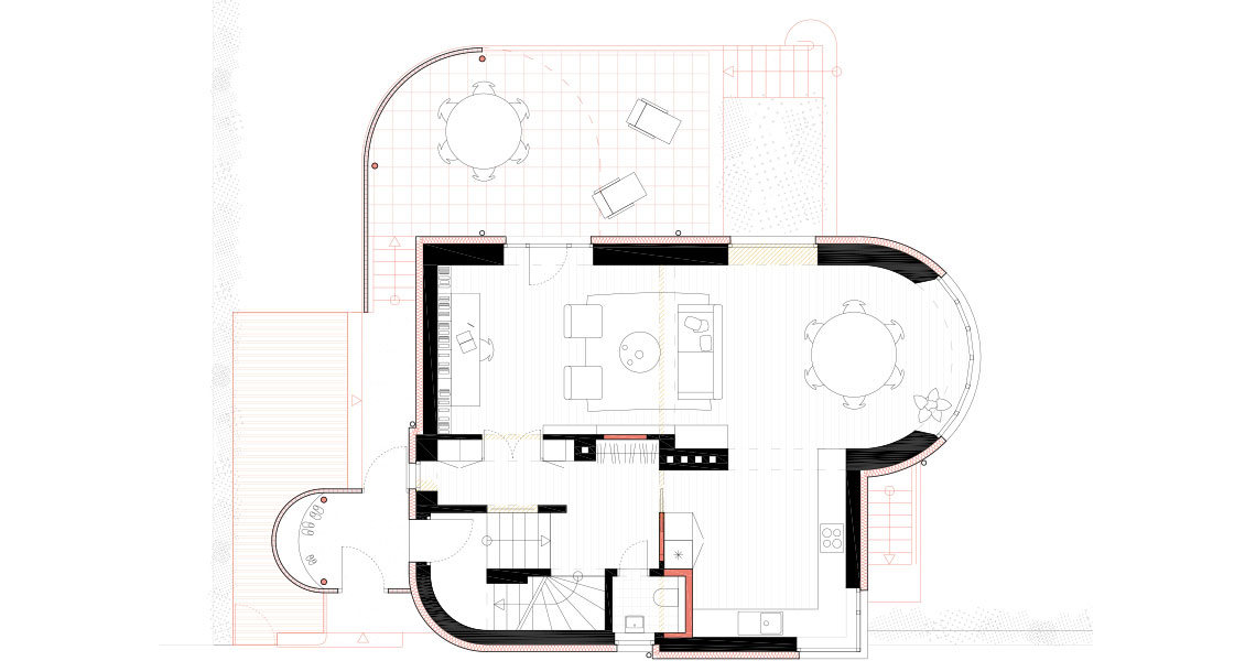
I když se tento dům z přelomu 20. a 30. let snažil být modernistickou architekturou, je zde stále patrný velký vliv tradiční architektury.
Některá naznačená až nedokončená témata pomáháme domu posunout dál. Překvapivé momenty stavby vycházející z doby vzniku zanecháváme, nově navazujeme v duchu modernismu a plynule přecházíme do vyjadřovacích prostředků současného světa.
Není důležité, aby bylo rozpoznatelné, co je stávající a nově dostavěné. Podstatné je, aby dům fungoval jako celek. Znejistění diváka ohledně vývoje domu chápeme jako kvalitu.
místo / České Budějovice
rok / 2023
velikost / 270m2
fáze / studie
architekt / Tomáš Hanus, Jan Holub