Provozní středisko Povodí Vltavy
Provozní středisko Povodí Vltavy

Návrh je silně formován kontextem svého okolí, které představuje na první pohled až romanticky vyznívající přírodní prostředí u řeky Otavy. Po bližším prozkoumání souvislostí se však zároveň nacházíme na místě, které je do jisté míry neutěšené a syrové – nejbližší sousedství tvoří psí útulek, areál zahradnictví, skladovací haly a hluk z frekventované silnice... 

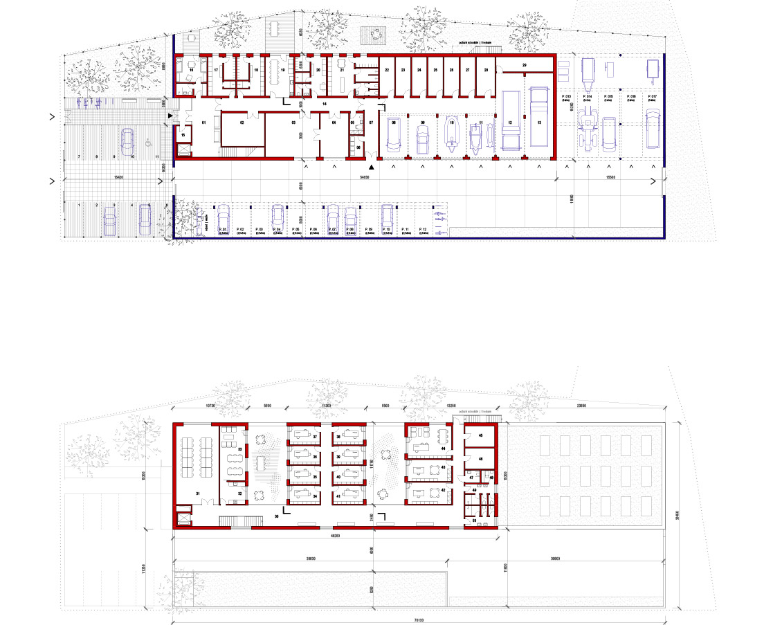
Nové provozní středisko proto tvoří uzavřený, kompaktní a do sebe orientovaný areál, který se snaží vytvořit příznivé podmínky pro fungování obou hlavních částí – technické i administrativní. 

Servisní část je umístěna ve spodním podlaží, kde využívá přímé vazby na plochu technického dvora. Administrativní část je pak umístěna v podlaží druhém, kde je díky své orientaci a uspořádání maximálně odcloněna od nežádoucího hluku a poskytuje tak klidné prostředí na kancelářskou práci.

místo / Strakonice

rok / 2023

velikost / 1850m2

fáze / soutěžní návrh

architekt / Tomáš Hanus, Jan Holub