Kulturní centrum Rokycany
Kulturní centrum Rokycany

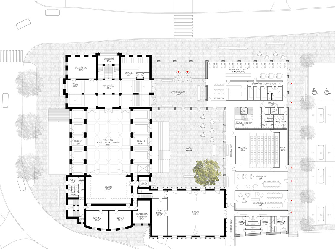
Nové kulturní centrum utváří celek vzájemně propojených historických a nových budov se společným vstupem a důležitým prostorem dvora, který utváří těžiště místa. 

S ohledem na charakter lokality jsme se rozhodli důležitý poloveřejný venkovní prostor orientovat do nitra komplexu, kde bude těžit ze všech aktivit probíhajících v okolních budovách. 

Novostavba se svým výrazem abstraktně odkazuje na starou budovu Sokola, zároveň ale má zřetelnou ambici přinést místu nové impulzy a vtisknout mu specifickou a silnou identitu.

2. místo ve veřejné architektonické soutěži

místo / Rokycany

rok / 2021

velikost / 5895 m2

stavební náklady / 236 mil. CZK

architekt / Tomáš Hanus, Jan Holub