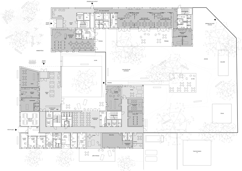
Domov pro seniory, důležitá typologie, kterých bude v budoucnu stále přibývat.
Protože se jedná o místo, kde mnozí lidé stráví svůj poslední čas, hledáme obraz prostředí, ve kterém by se jeho obyvatelé cítili dobře a přirozeně.
Ačkoliv se jedná o pozemek nešťastně umístěný mezi panelovým sídlištěm a nemocnicí, snažíme se návrhem vytvořit místo, se kterým se budou jeho obyvatelé umět identifikovat.
Kromě samozřejmého vnitřního porostředí tak vzniká svět zahrady s altánem, předprostor vstupu se stromem a lavičkou, různé typy předzahrádek, lodžie, balkóny a terasy...
Prostředí domova by nemělo být anonymní.
místo / Tábor
rok / 2014
velikost / 4 120m2
stavební náklady / 130mil. CZK
fáze / soutěž, zvýšená odměna
architekt / Jan Holub
spolupráce / Richard Zacpal